VALVOLA A SFERA “CLASSIC” PER BOTTI IN LEGNO – USCITA GAROLLA
Varianti e misure disponibili per questo prodotto
SKU principale: 2.100.SU. --
Identifica il prodotto in senso generale, indipendentemente dalla misura. Utilizzabile per richieste tecniche o commerciali non specifiche
Ultima lettera presente in ogni codice prodotto ne identifica l'esecuzione: ovvero la combinazione di materiali in cui è costruita.
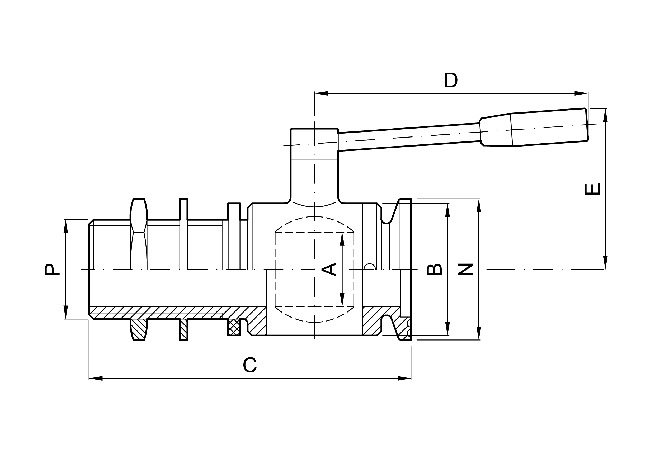
| codice | GAROLLA | P | A | N | B | C | D | E |
|---|---|---|---|---|---|---|---|---|
| mm | mm | mm | mm | mm | mm | mm | mm | |
| 2.100.SU.29-A | 40 | 42 | 32 | 65 | 58 | * | 125 | 80 |
| 2.100.SU.35-A | 40 | 48 | 36 | 65 | 62 | * | 140 | 84 |
| 2.100.SU.47-A | 50 | 54 | 45 | 75 | 78 | * | 160 | 93 |
| 2.100.SU.52-A | 60 | 60 | 50 | 86 | 89 | * | 184 | 109 |
| 2.100.SU.60-A | 60 | 63 | 57 | 86 | 101 | * | 184 | 115 |
| * su richiesta, on demand, sur request |